Hírek:

Fontos tudnivalók a migrációval kapcsolatban, Kérlek nézd meg a Régi fórumról új fórumra való költözés 

Main Menu

Segítség, béna vagyok!

Indította gaben, 2024 április 09, 15:35

Előző téma - Következő téma

Kidwick

Köszönöm szépen ! Mekkora hőfokon sütik? [#worship]
Személyes átvétel Óbudán, Százhalombattán ill postázásuk előreutalás után megoldható. Vételi szándékot kérem privát üzenetben is jelezni!

mex

Emlékeim szerint ~160°C kell minimum, (gumipogácsákat is gyártottak a vulkanizáló műhelyben). De nem volt túllihegve a dolog, alul-felül egy egy fűtőlap, közte a forma, amit aztán egy hidraulikus munkahengerrel összenyomtak kézipumpa segítségével. A fűtésnél nem láttam semmiféle szabályzást, csak a sütés idejét tartották szemmel azt is tág határok közt.[#nyes]
A Te formádon is megvannak azok a furatok, melyek a gumimassza szabad tágulását biztosítják a hőmérséklet emelkedésekor.

VViktor

Sziasztok Mesterek!!!
Volna egy ,azaz kettő kérdésem,ami nem igazán ide való,de nem találtam jobb helyet,kérek nézzétek el nekem.
Első kérdés. Mitől van,hogy a visszatérő kör nem melegszik fel?
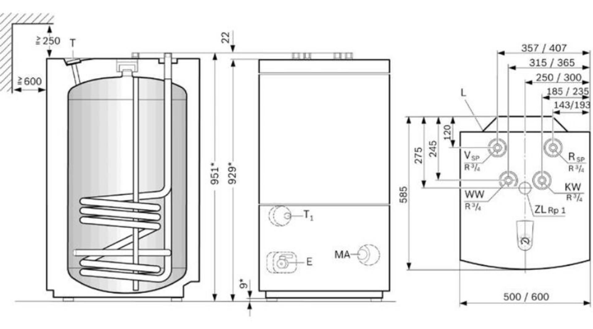
Második. A mellékelt képen lévő feliratok értelmezésében kellene segítség,mert nem vagyok biztos magamban.
A Vsp a csőkígyó visszatérője? Rsp az előremenő?
A WW a felmelegített víz kimenője?
A KW meg a hideg víz csatlakozás?
Na de mi a ZL,és az E ,meg az MA?

  

2f428kduf

A csőkígyó alul, a hideg zónában van. Idő kell hozzá, mire az egész víztömeg átmelegszik. Addig a visszatérő hideg lesz. A szivattyu-üzem elég bonyolult, akit a vizsgáztató meg akart izzasztani: a kagyló-diagramról faggatta. Lehetséges nem jut elég meleg víz a bojler fűtésére. Egy kísérlet: az összes többi radiátor szelepét zárni, ha nem is teljesen, akkor mi lesz. Legtöbb központi fűtésnél ez a hangolás marad el, egyik radiátor gyorsabb, másik lassabb lesz. Az alsó radiátor szelep szolgálná ezt amit imbusz kulccsal lehet állítani, leg egyszerűbben úgy, hogy az egyes radiátorokon azonos legyen a hőesés.  A mostani kazánok már marhára "okosak", a visszatérő vizet is figyelik, és beleőrülnek abba: meleg víz jön vissza de a termosztát meg biztatja: FŰTS. No ekkor kezd csuklani.

VViktor

Szervusz Zoltán! Köszönöm a választ,de ez a tároló még nincs beépítve,szóval még nem ez a baj :)

gabi

SZia
v előremenő fűtés vorlauf
r visszatérő fűtés   rücklauf
ww melegvíz  warmwasser
k  hideg víz  kaltwasser
z  cirkulácios csatlakozó
t   termosztát hely
m   magnézium anód
e   leűrító csonk

VViktor

Szia Gabi!
Hálásan köszönöm ezt gyorsan fel is írom :D

Kidwick

Személyes átvétel Óbudán, Százhalombattán ill postázásuk előreutalás után megoldható. Vételi szándékot kérem privát üzenetben is jelezni!

2f428kduf

Akkor honnan tudod, hogy a visszatérő nem melegszik.

ANTAL GÁBOR

Sziasztok !
Yahoo-s levelezőt használok min 20 éve . Az utóbbi időben szívat . Belépnék és azt írja ki hogy a szolgáltatás jelenleg nem elérhető várjon 60 percet . Ha kivárom akkor feljön hogy nem vagyok robot , majd különböző képekből kell kiválasztani valamit , azután beenged .Mozzila a böngésző, ami naprakész ( direkt leellenőriztem )
Kipróbáltam Chrom-mal is  Kéri a nevet és a jelszót majd simán beléptet .   A telefonomnál sincs semmi problémám

Mi lehet a baj forrása ?   Várom válaszotokat

Istvan0728

A Mozzila/Firefox csinál ilyeneket. Próbáld meg frissíteni a böngésződet, ha az után sem megy akkor másik böngésző használata a javasolt.

ywathzay

Nekem a g-mail-el csinálta egy időben a mozilla, majd átálltam chrom-ra. A fejlődés töretlen. Valószínűleg nem véletlen, merthogy véletlenek nincsenek.

ANTAL GÁBOR

Köszönöm a hozzászólásokat . D Tóth Béla közben megcsinálta  ( neki is köszönöm )

VViktor

Szia.
Most is megy a fűtés,a tartály még csak most lenne beépítve.

2f428kduf

Ezek szerint nem a bojler visszafolyója hideg, hanem a fűtésé.
Jól gondolom, hogy a visszafolyóval akarnád fűteni??
Nem jó ötlet, az mindíg hideg arra, hogy használati melegvízhez. Ugyanúgy kell bekötni, mintha egy radiátor lenne, prsze behangolni ha túl rövid az ág.